なぜ水素が注目?
世界が脱炭素化へと加速する中、次世代エネルギーの中核として注目を集めているのが「水素」。
ではなぜ水素なのでしょうか?
究極のクリーンエネルギーへの期待
水素と酸素を化学的に結びつけることで、熱や電気といった大きなエネルギーを取り出せます。
その際に排出されるのは二酸化炭素ではなく水だけであるため、製造方法の工夫次第で究極のクリーンエネルギーになり得るのが最大の特徴です。
多様な資源から作れる
水素は水からはもちろんあらゆる資源から製造可能で、すでに廃プラスチックや生ごみからの水素の製造も実証・稼働が進められています。

このように水素はSDGsが掲げる『持続可能な社会』実現のための大きな可能性を秘めていることから、注目を集めています。
脱炭素・次世代エネルギー社会の実現に向けて協成の取り組み
水素バルブの開発
協成ではその未来を見据え、お客様がより環境にやさしい事業運営を実現できるよう、私たちの得意分野であるバルブの新製品として『水素ガス対応全溶接型埋設式スチール弁』を開発しました。
水素インフラの拡大に伴い、事業の持続可能性を高めるための最適なソリューションとして、本製品はお客様のカーボンニュートラルに貢献します。
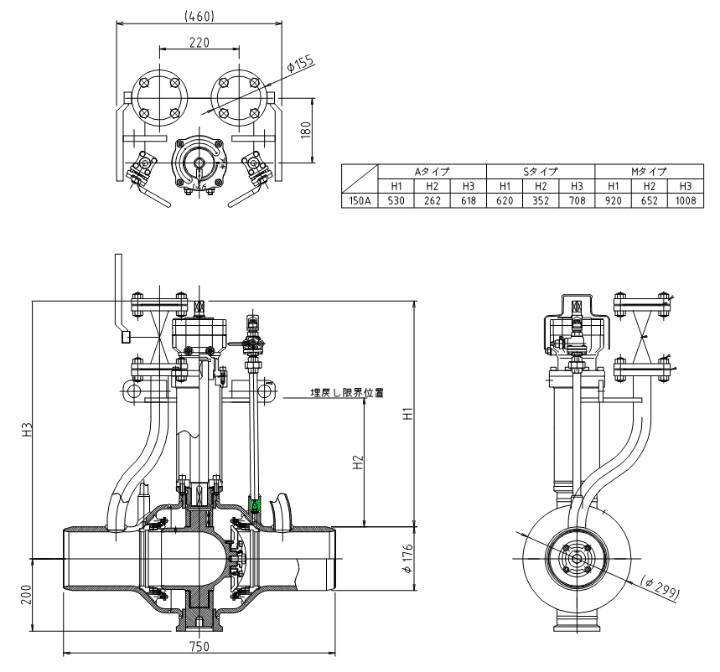
『水素ガス対応全溶接型埋設式スチール弁』のご紹介
高性能設計により過酷な環境下でも安定した運用を実現します。
スペック
- 適用流体:水素ガス
- サイズ :150A ※100A・200Aは現在開発中
- 設計温度:-20℃~80℃
- 使用圧力:1.0MPa未満
- 接続方式:突き合わせ溶接接合
- ポート開口比:フルボア

評価実験
水素エネルギー製品研究試験センターHyTReCにて試験を実施しました。

さまざまな評価基準をクリアしています。
\水素ガスによる耐圧気密試験中
/

\さまざまなテストをクリアし出荷準備中
/

水素の流通を支えるKYOSEI
水素を「つくる」「ためる」「はこぶ」「つかう」。
今回開発の「水素ガス対応全溶接型埋設式スチール弁」は主に水素ステーションから発電施設などを結ぶパイプラインに設置される予定です。

当社の水素バルブはパイプラインの安定運用を支え、次世代エネルギーを確実に「はこぶ」プロセスに確かな技術で貢献します。
|
|